Warning: SessionHandler::read(): open(/var/www/100500kotlov.ru/data/mod-tmp/sess_297310ea39048bbc1cef8dccccbe356a, O_RDWR) failed: No space left on device (28) in /var/www/100500kotlov.ru/data/www/kotlom.ru/vendor/symfony/http-foundation/Session/Storage/Proxy/SessionHandlerProxy.php on line 59
Колосник задний гладкий большой 00.7032.086 — купить в Якутске | Цена производителя

Колосник задний гладкий большой 00.7032.086

Цена
Цена по запросу
Доставляем Колосники чугунные
в г. Якутск

Кратко о характеристиках

Тип колосникаКолосники для топки ТШПМ

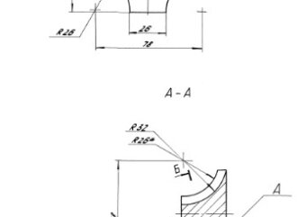
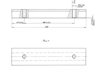
Колосник задний гладкий большой 00.7032.086 в Санкт-Петербурге – деталь колосниковой решетки, располагающаяся внутри топки котельного агрегата. Колосник обеспечивает стимуляцию процесса горения, за счет проникновения воздуха под топливо. Используется в работе механических топок ТШПМ

Характеристики

Серия
00.7032.086
Применяемость
Топка с шурующей планкой ТШПМ
Масса, кг
2.6
Цена, руб.
Тип колосника Колосники для топки ТШПМ
Как все происходит
на видео
Смотреть видео галерею
Возникли
вопросы?
Закажите консультацию
Или позвоните
8 (800) 551-45-60
Ответим на вопросы
Расскажем о скидках
Презентуем товар
Поможем выбрать
Доставляем Колосники чугунные
в г. Якутск

Устройство и принцип работы

Колосники задний гладкий большой 00.7032.086 изготавливаются из жаропрочного чугуна и хорошо выдерживает самые высокие температуры до 1000 градусов. Решетка располагается между камерой и зольником, что позволяет легко удалить золу с поверхности решетки, не препятствуя проникновению воздуха под топливо. Для этого, между колосниками, предусмотрены пространства, которые составляют около 40% от общей площади решетки. Условное обозначение Колосники задний гладкий большой 00.7032.086, где: 00.7032.086 – номер чертежа БиКЗ.

Особенности и преимущества

      • Способствует интенсивности горения;
      • Обеспечивает полный расход топлива;
      • Гарантирует прочность и жаростойкость;
      • Обладает высоким процентом КПД (более 90%);
      • Имеет примитивная конструкция.

Установка и комплектация

    Для обеспечения теплового расширения, при монтаже колосниковой решетки, оставляют шов в 5 мм. При установке важно соблюдать нормы СНиП и руководствоваться «Правилами устройства и безопасной эксплуатации паровых и водогрейных котлов
Следите за новостями в социальных сетях
Наши цифры
скажут за нас все
10
Срок эксплуатации оборудования – более десяти лет
20
Двадцать лет
трудимся для вас
10
Меньше десяти дней
на изготовление товара
500
Более пятисот
точек поставки
Вы смотрели